Casa BAT

A Casa BAT reflete uma harmonia sutil entre acolhimento e sofisticação, pensada com precisão para um casal e seus filhos em idade escolar, mas também para os momentos de partilha que tanto prezam.

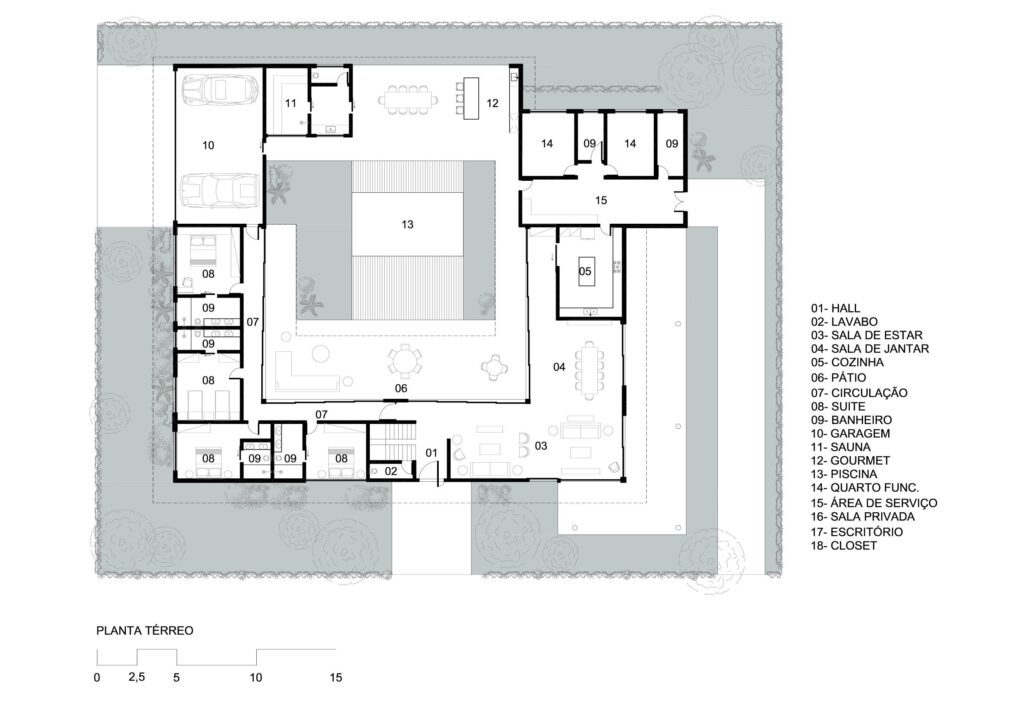
No coração da casa, os ambientes sociais se desdobram em uma fluidez que convida ao encontro: espaços internos e externos que dialogam suavemente, projetados para acolher risadas e conversas até altas horas, seja sob a luz do sol ou sob as estrelas.

As transições entre esses ambientes são quase imperceptíveis, criando um cenário que ora abraça a intimidade, ora celebra a coletividade. Enquanto isso, a privacidade da família é preservada com elegância.

Os quartos, voltados para jardins secretos que margeiam os limites do terreno, encontram no verde um refúgio silencioso, desenhado pelo paisagismo como uma moldura natural para a casa. Ainda assim, mesmo nos corredores que conectam esses espaços íntimos, a ideia de integração ressurge: os trajetos não são meramente funcionais, mas sutilmente conectam o viver privado ao social.

A cozinha principal, recuada e funcional, respeita a dinâmica cotidiana da casa. Já a área gourmet, estrategicamente posicionada na continuidade dos espaços sociais externos, foi pensada para momentos especiais, quando a arte de cozinhar torna-se uma experiência compartilhada com amigos. É aqui que sabores e histórias se encontram, cercados pelo frescor do ar livre.

Esta casa não é apenas uma morada; é um palco onde a vida cotidiana e as celebrações extraordinárias se entrelaçam, sempre com um cuidado quase imperceptível que faz a beleza parecer natural e a funcionalidade, inevitável.

Ficha Técnica

AREA CONSTRUÍDA
LUGAR
CONCLUSÃO

1260 m2
Leblon, Rio de Janeiro, Brasil
2024

PROJETO
ARQUITETURA E INTERIORES
EQUIPE

Casa BAT
Viviane Cunha Arquitetura
Viviane Cunha, Rosi Vellasco, Rafael
Agnese, Gabrielly Rodrigues

IMAGENS

Sérgio Lima Rodrigues