Casa SWS

Esta residência no Condomínio do Frade, em Angra dos Reis, foi adquirida por nossos clientes como uma propriedade antiga e em condições degradadas, sem uso por vários anos.

Ampliamos e transformamos a estrutura para atender ao extenso programa que os clientes desejavam para essa casa.

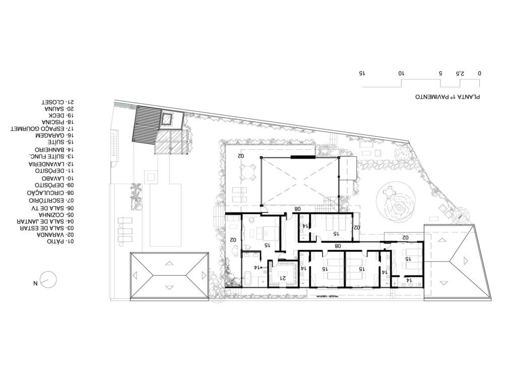
A principal função dessa residência é promover a convivência familiar e social, por isso ampliamos para 6 suítes, todas confortáveis e acolhedoras, além de criar uma ampla área social e de jantar com pé direito duplo.

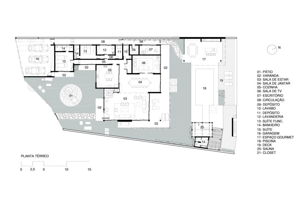
A sala de TV e a cozinha foram projetadas para se integrar à área social, com grandes portas de madeira
deslizantes, permitindo diferentes usos para os espaços.

Dedicamos atenção especial à área externa, criando ambientes para diversas atividades. Próxima à entrada, criamos uma praça para refeições intimistas

O lado oposto da área externa é voltado para um canal do condomínio, e, em frente à casa, projetamos um espaço para a ancoragem do barco da família, com uma escada de acesso ao deck da piscina.

Além da piscina, esta área conta com uma ampla área gourmet, sauna e dependências de apoio, incluindo banheiro e área de repouso para os usuários.

O quarto principal foi projetado como um espaço quase independente, com área de estar, pequeno escritório, generoso closet e um belo banheiro voltado para a vista e para a varanda compartilhada com o quarto.

No desenvolvimento deste projeto, priorizamos materiais nobres e sustentáveis, que transmitem a sensação de bem-estar e acolhimento

No ano de 2024, nosso projeto Casa SWS, localizada em Angra dos Reis, recebeu o prestigiado prêmio Platinum Winner no Houzee Awards 2024.

Fomos reconhecidos na Architecture Collection, na categoria Single-Family Housing, consolidando nosso compromisso em criar espaços que unem design inovador, funcionalidade e integração harmoniosa com a natureza.

Ficha Técnica

AREA CONSTRUÍDA
LUGAR
CONCLUSÃO

830 m2
Angra dos Reis, Brasil
2020

PROJETO
ARQUITETURA E INTERIORES
EQUIPE

CASA SWS
Viviane Cunha Arquitetura
Viviane Cunha, Pauline Souto, Rosi Vellasco, Tomás Câmara, Beth Frejat

IMAGENS

Gabriel Guimarães