Escritório CAL
No coração do Rio de Janeiro, um projeto de arquitetura abraça uma das vistas mais icônicas do mundo: a Baía de Guanabara e o Pão de Açúcar.
O espaço foi concebido para unir a precisão e a funcionalidade exigidas pelo universo jurídico com a serenidade e a inspiração que apenas um cenário tão marcante pode oferecer.
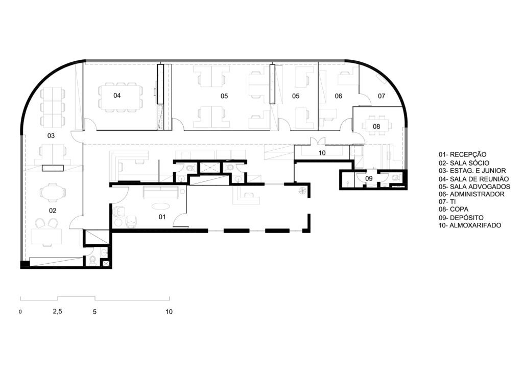
A recepção, ponto de chegada e cartão de visita, foi pensada como uma área de acolhimento genuíno. Um estar elegante e confortável recebe clientes e visitantes, permitindo que aguardem reuniões com tranquilidade quase como se estivessem num lounge privativo de um hotel.
A paleta de cores combina o calor da madeira peroba ao branco e ao cinza chumbo, criando uma atmosfera sóbria e sofisticada.
Essa linguagem visual se repete em todos os ambientes, conferindo identidade e harmonia. Linhas retas e elegantes no mobiliário reforçam o caráter contemporâneo do projeto.
As salas de advogados, voltadas para a vista espetacular, transformam o trabalho diário em uma experiência visual privilegiada. Ao centro, uma área estratégica concentra as três secretárias da equipe.
A solução de balcão em “L” garante organização e discrição, protegendo equipamentos e atividades do olhar de quem circula pelo espaço, sem perder a integração com a dinâmica do escritório.
A cozinha com copa foi planejada para muito mais do que servir refeições: é um convite ao convívio. Ali, os funcionários se encontram, compartilham momentos e fortalecem vínculos, seja no almoço ou em uma pausa rápida para o café.
Para Viviane Cunha, arquitetura é sobre mais do que paredes e móveis:
“Os espaços devem expressar funcionalidade e beleza, criando harmonia de forma a estimular relações e convívios de qualidade.”
Neste escritório, a fórmula se traduz em ambientes que equilibram técnica, estética e humanidade com o privilégio de ter como moldura uma das paisagens mais belas do planeta.
Ficha Técnica
AREA CONSTRUÍDA
LUGAR
CONCLUSÃO
355 m2
Rio de Janeiro, Brasil
2018
PROJETO
ARQUITETURA E INTERIORES
EQUIPE
ESCRITÓRIO CAL
Viviane Cunha Arquitetura
Viviane Cunha, Tomás Câmara, Matheus Coelho, Rosi Vellasco, Rafael de Souza Silva
IMAGENS
Leonardo Costa

